לחפש

אפיון המשרד

  • 400
  • Area Size
  • 34-38
  • עמדות עבודה
  • 7
  • חניות

תיאור המשרד

משרד פונקציונלי ונעים עם מרפסת פרטית להשכרה במגדלי אלון בתל אביב – אזור עסקים מרכזי עם נגישות גבוהה ונוכחות גבוהה. המשרד נמצא במרחק הליכה קצר מתחנת הרכבת הקלה יהודית ותחנת רכבת השלום, מה שמקל על הגעה מכל חלקי העיר והמרכז.
סביבת המגדל תוססת ומלאה בשירותים – כולל שלל מסעדות, בתי קפה, חנויות נוחות וחדרי כושר – המעניקים חוויית עבודה שלמה ונוחה במיוחד לעובדים ולאורחים.

גודל המשרד: 400 מ”ר + מרפסת פרטית
מחיר מבוקש: 140 ₪ למ”ר
דמי ניהול: 17 ₪ למ”ר
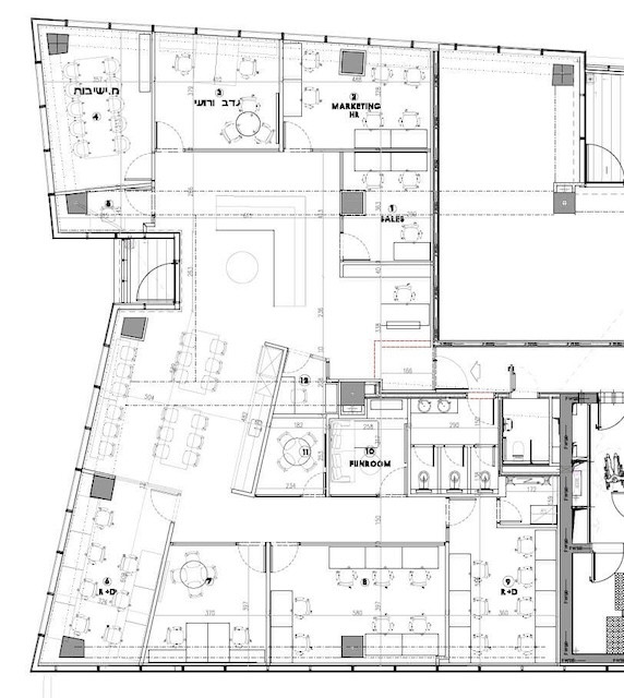
אודות חלוקת המשרד: מצ״ב באלבום. 34-38 עמדות עבודה
מידע נוסף: כניסה מיידית. חנייה- 7 חניות, עלות כל חניה 1,200 שח. ריהוט- למכירה

שתפו אותנו במה שאתם מחפשיםונמצא פתרון!

חלוקה פנימית

  • מטבחים 5
  • מרפסות 1
  • זמן הליכה מתחנת הרכבת 12
  • מחיר לחניה 1200
  • זמן הליכה מתחנת הרכבת הקלה 13

משרדים דומים

השווה מקומות אירוח

לְהַשְׁווֹת

תפריט נגישות

צור קשר