לחפש

אפיון המשרד

מספר משרד: CRM905
  • 880
  • Area Size
  • 160
  • שכ"ד למ"ר
  • 18
  • דמי ניהול למ"ר
  • 76-86
  • עמדות עבודה

תיאור המשרד

משרד להשכרה בבית קרדן המפואר באזור צפון מנחם בגין-אזור המתפתח והמבוקש של תל אביב. משרד בקומה גבוהה עם נוף מדהים לעבר הים. גישה נוחה בתחבורה ציבורית, רכבת הקלה במרחק של 5 דקות הליכה ורכבת סבידור מרכז במרחק של 7 דקות הליכה.

גודל המשרד: 880 מ”ר.

מחיר מבוקש: 160 ש”ח למ”ר.

דמי ניהול: 18 ש”ח למ”ר.

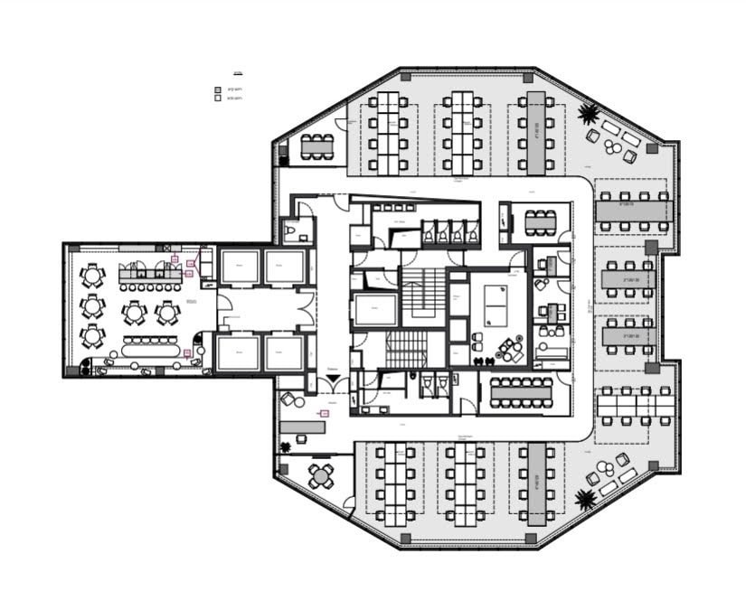
אודות חלוקת המשרד: המשרד מחולק לאופן ספייס, 7 חדרים כולל ישיבות, מטבח גדול. סה”כ יש 76 עמדות באופן ספייס. מצורפת תכנית חלוקה.

מידע נוסף: בית קרדן נמצא באזור הכי מבוקש של תל אביב. אזור כייפי, שיש בו הכל- מגוון חנויות, בתי קפה, מסעדות, מקומות פאני ובילוי ועוד. שפע תחבורה ציבורית. שמירה בלובי 24/7. לפרטים נוספים ניתן ליצור קשר.

חלוקה פנימית

  • אופן ספייסים 1
  • חדרי ישיבות גדולים 1
  • חדרי עבודה 5
  • אזורי לאונג' 1
  • חדרי ישיבות קטנים 1
  • מטבחים 1
  • זמן הליכה מתחנת הרכבת 7
  • זמן הליכה מתחנת הרכבת הקלה 5

משרדים דומים

השווה מקומות אירוח

לְהַשְׁווֹת

תפריט נגישות

צור קשר