לחפש

אפיון המשרד

מספר משרד: CRM1067
  • 237
  • Area Size
  • 135
  • שכ"ד למ"ר
  • 17
  • דמי ניהול למ"ר
  • 20-23
  • עמדות עבודה

תיאור המשרד

משרד להשכרה במגדל רסיטל המבוקש בנמצא על ציר מנחם בגין באזור עסקי מתפתח ומבוקש. מיקום מעולה עם נגישות גבוהה בתחבורה ציבורית. כניסה מיידית.

גודל המשרד: 237 מ”ר.

מחיר מבוקש: 135 ש”ח למ”ר.

דמי ניהול: 17 ש”ח למ”ר.

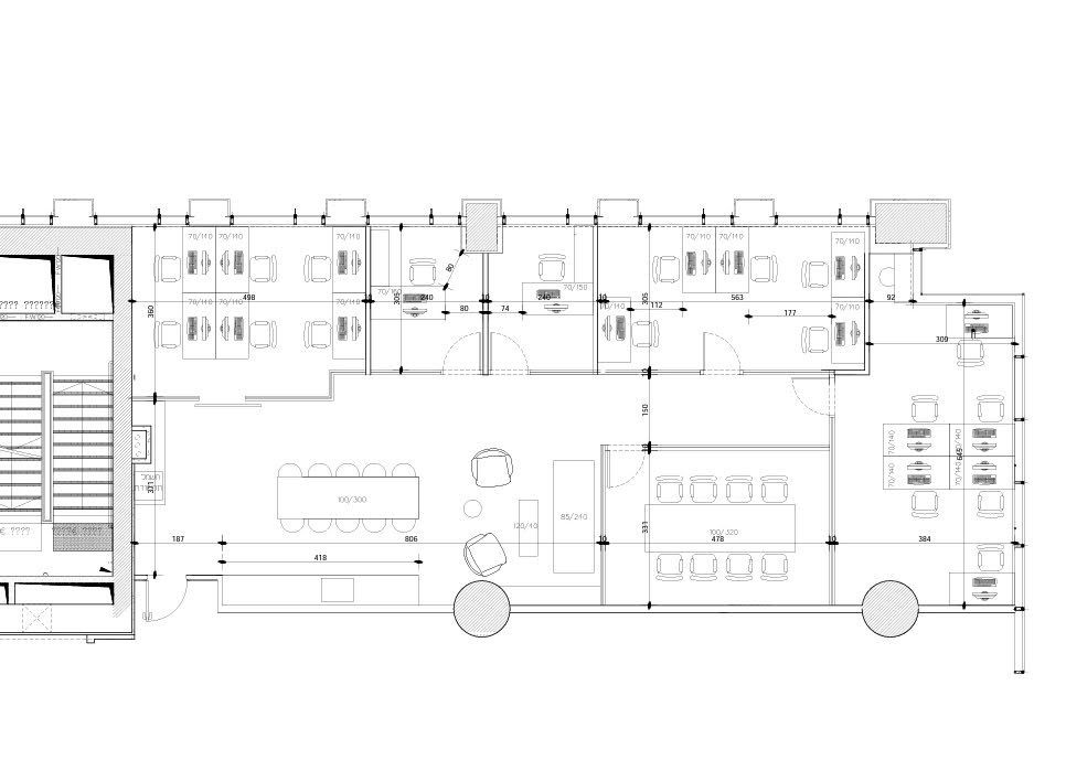
אודות חלוקת המשרד: משרד מחולק ל-3 חדרי צוות 6 עמדות, 2 משרדים/חדרי שיחה אחד על אחד, חדר ישיבות גדול ומטבח. מצורפת תכנית חלוקה.

מידע נוסף: מגדל משרדים חדש עם מעליות מהירות, לובי מפואר, שומר 24/7, חניון לשימוש הדיירים. שפע תחבורה ציבורית, מסעדות, בתי קפה, מקומות פנאי ובילוי..

רכבת הקלה ורכבת השלום במרחק של 5-7 דקות הליכה.

חלוקה פנימית

  • חדרי ישיבות גדולים 1
  • חדרי עבודה 2
  • מטבחים 1
  • זמן הליכה מתחנת הרכבת 6
  • זמן הליכה מתחנת הרכבת הקלה 4
  • חדרי צוות 3

משרדים דומים

השווה מקומות אירוח

לְהַשְׁווֹת

תפריט נגישות

צור קשר